
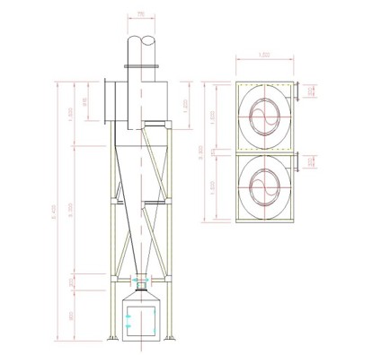
CYCLONE
원심력집진시설
CYCLONE SYSTEM
회전에 의해 분진을 분리·제거하는 고내구성 원심력 집진 시스템
원심력집진시설 (CYCLONE)
비교적 입자가 크거나 비중이 있는 분진을 원심력(회전력)을 이용하여 공기 흐름에서 분리하는 장치입니다. 가스 흐름에 접선 방향으로 입자를 유입시키면 내부에서 회전 운동이 발생하고, 이때 생긴 원심력에 의해 분진이 외벽으로 밀려나 하부로 자연스럽게 포집됩니다. 구조가 단순하고 내구성이 높으며 설치비와 유지비가 낮아 다양한 산업 현장에서 널리 사용되고 있습니다.
적용 사업장
- • 방지시설 전처리
- • 목재 공장
- • 시멘트 생산 공장
- • 보일러 분진 처리


